Graduates

Hyun Jun Yoon

BS in Spatial Experience Design — Spatial Experience Design

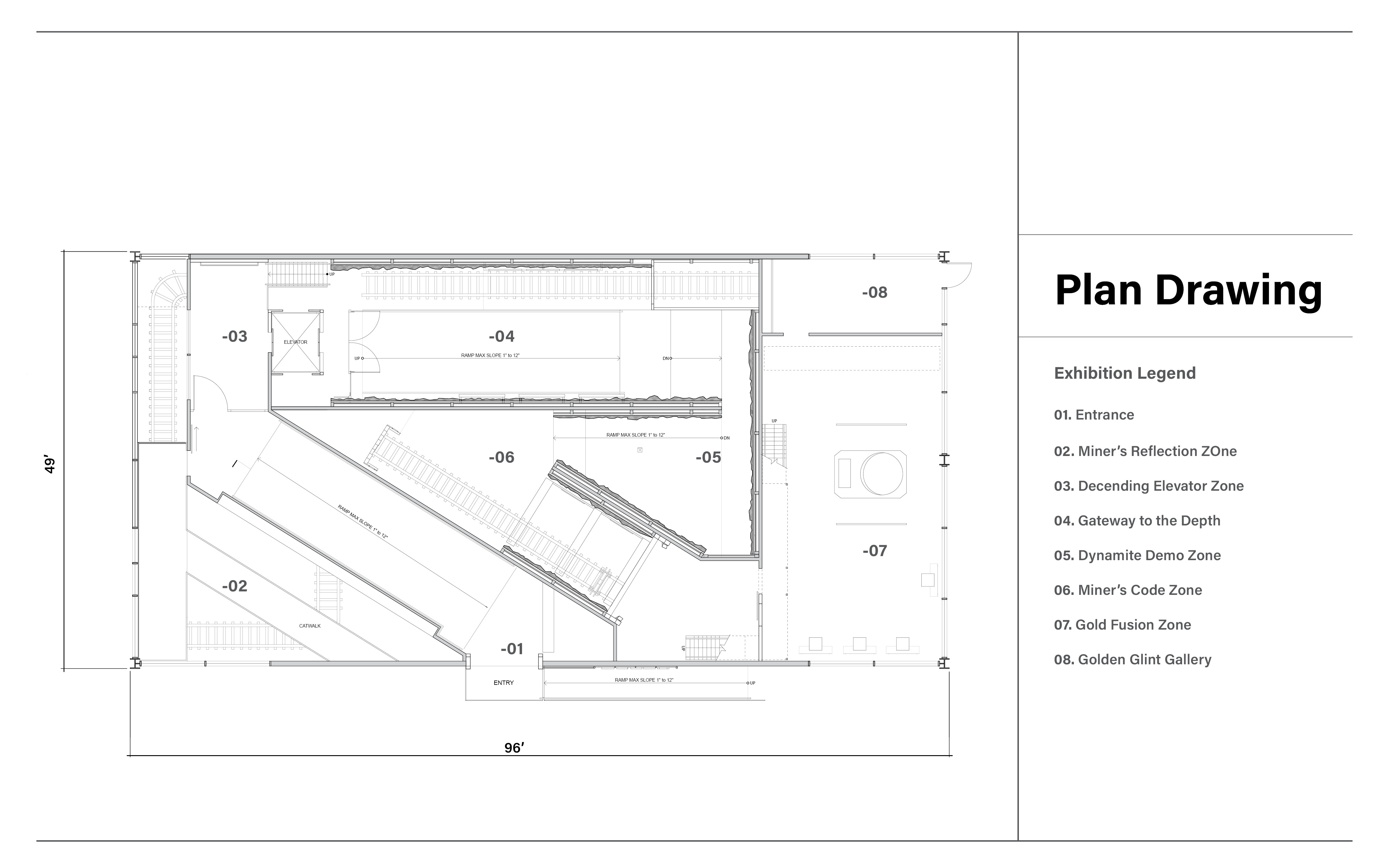
Into The Depth

Discover the hidden stories behind gold mining in our immersive exhibition. Follow the journey from raw ore to stunning jewelry, uncovering the challenges and resilience of miners along the way. Celebrate their perseverance and dedication, transforming nature’s raw bounty into treasures of beauty and meaning.
Image
Image
Image
Image
Image
Image
Image
Image
Image
Image
Image
Image
Image