Graduates

Junghee Hwang

BS in Environmental Design — Spatial Experience Design

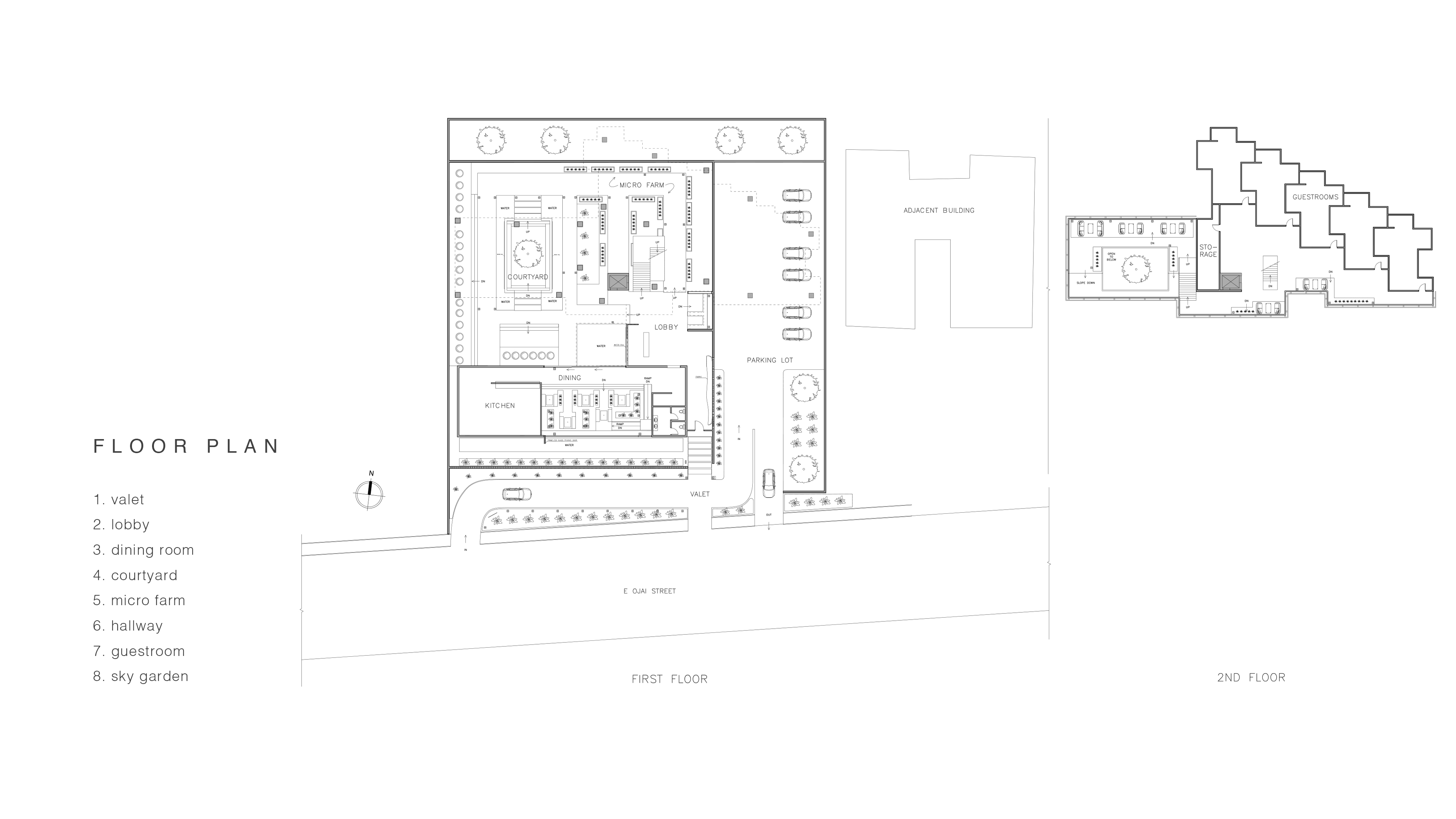
Baroo

Baroo is a fermented fusion fine-dining restaurant with accommodation, with the goal of taking care of healthy life by consuming food that is made of time, sincerity, and communion with nature, with local fresh seasonal food.
Image
Image
Image
Image
Image
Image
Image
Image
Image
Image
Image
Image
Image
Image
Image
Image
Image
Image