Graduates

Kelsey Hawthorne

BS in Environmental Design — Spatial Experience Design

La Fortuna

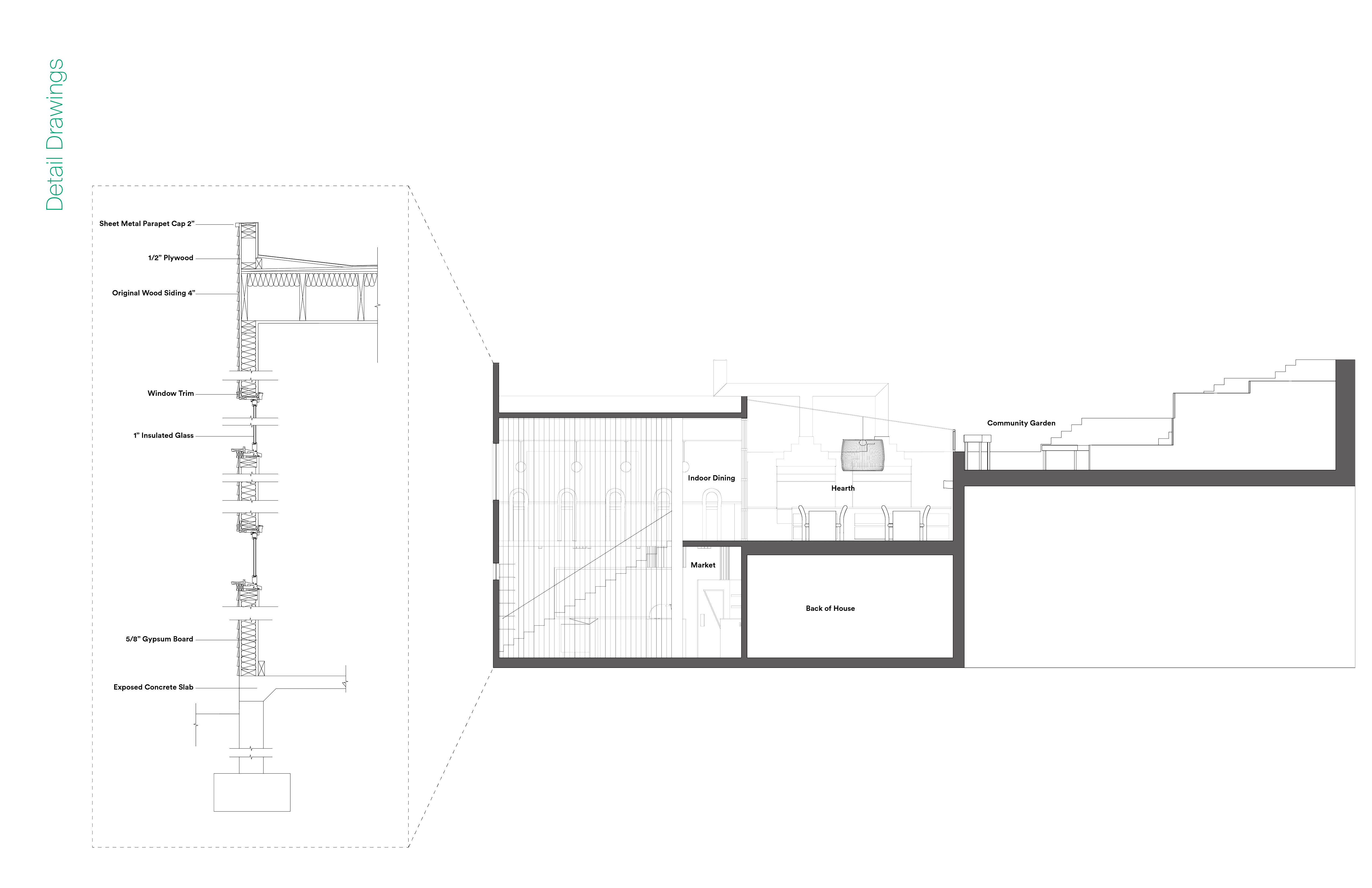
La Fortuna is a community space, open fire cooking restaurant, and food market place, with the goal of providing healthy food options within walking distance for the Lincoln Heights Community. We provide locally sourced organic meats, and produce, at low prices, an opportunity to grow and harvest your own food in the community garden, and an embrace of traditional cooking methods, reflecting the rich culinary heritage and agricultural traditions of the area.
Image
Image
Image
Image
Image
Image
Image
Image
Image
Image
Image
Image
Image
Image
Image
Image
Image