Graduates

Rongda Tao

MS in Spatial Experience Design - 2 Yr Path — Graduate Spatial Experience Design

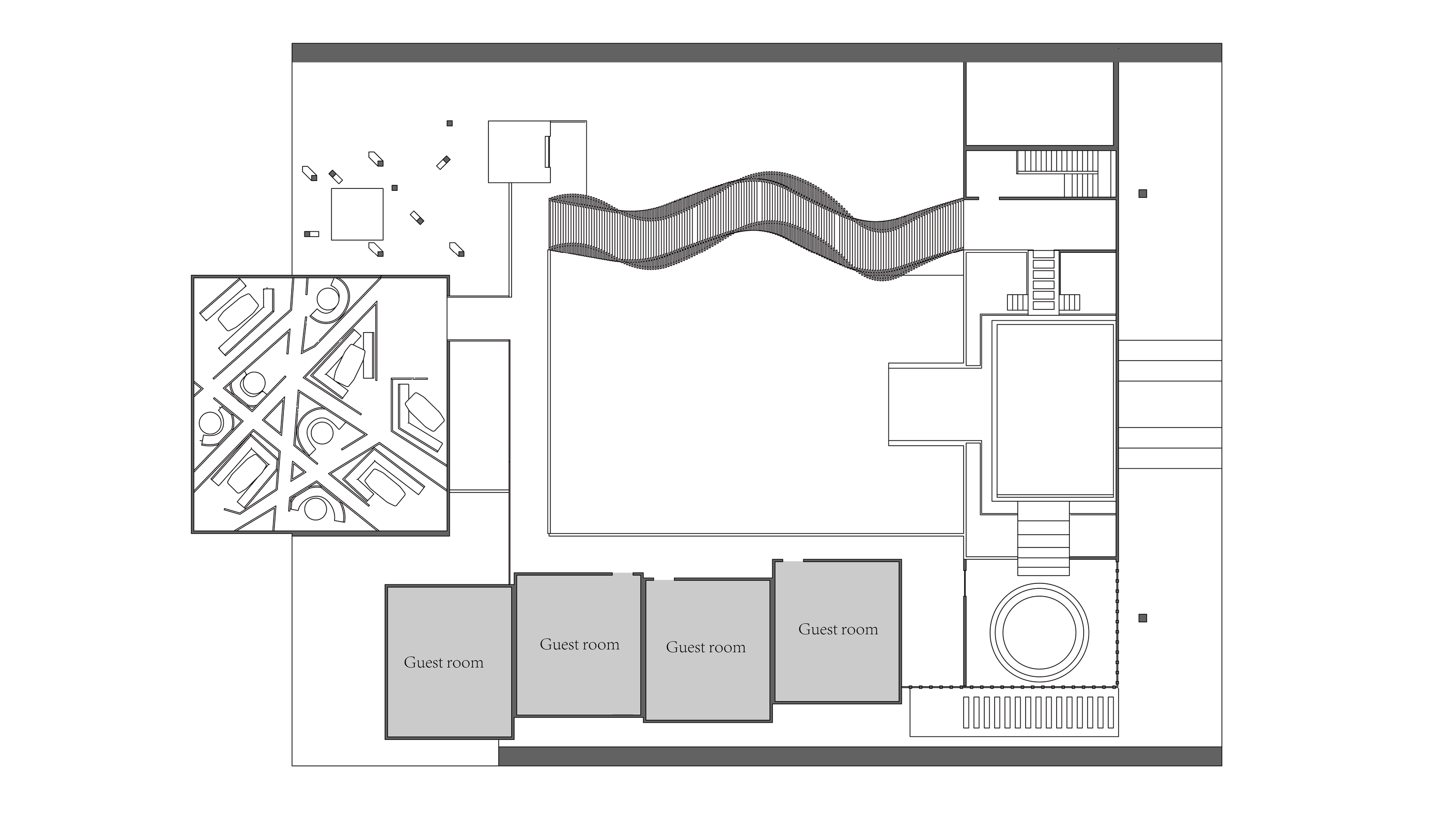
Mountscope

My design combines indoor and outdoor spaces, offering a seamless and comfortable way for people to connect with nature. By creating environments that reflect different aspects of the mountain experience, we provide a unique opportunity for individuals to deepen their appreciation of the natural world. This connection enhances their time in our spaces and enriches their encounters with nature beyond our walls.
Image
Image
Image
Image
Image
Image
Image
Image
Image
Image
Image
Image
Image
Image
Image
Image
Image
Image
Image
Image
Image
Image
Image
Image
Image