Graduates

Rongda Tao

MS in Spatial Experience Design - 2 Yr Path — Graduate Spatial Experience Design

Solar Hotel

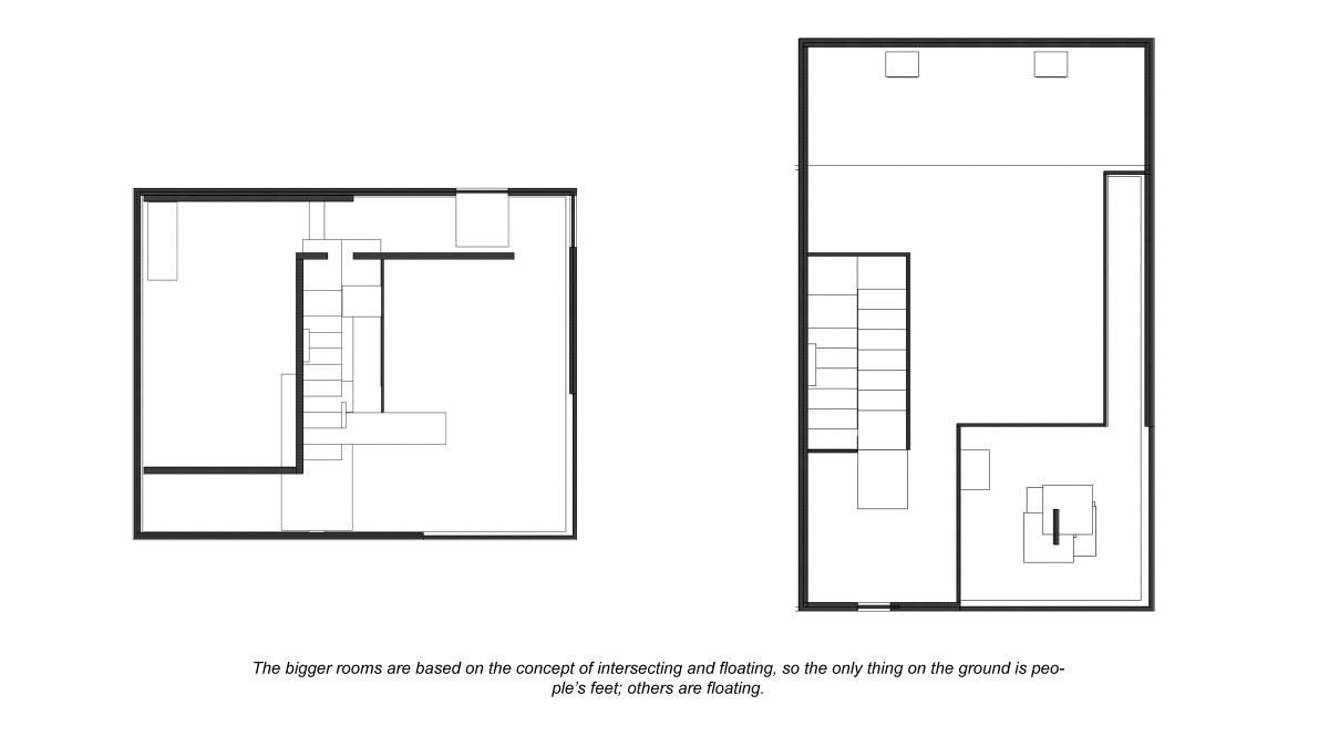
Solar hotel is a hospitality spaces that make people feel they are not on earth, giving them a false perception of gravity and endless feelings. Remove the horizontal layers and switch to vertical ones.
Image
Image
Image
Image
Image
Image
Image
Image
Image
Image
Image
Image
Image
Image
Image
Image
Image
Image
Image
Image
Image