Graduates

Xueyi Wu

MS in Spatial Experience Design - 2 Yr Path — Graduate Spatial Experience Design

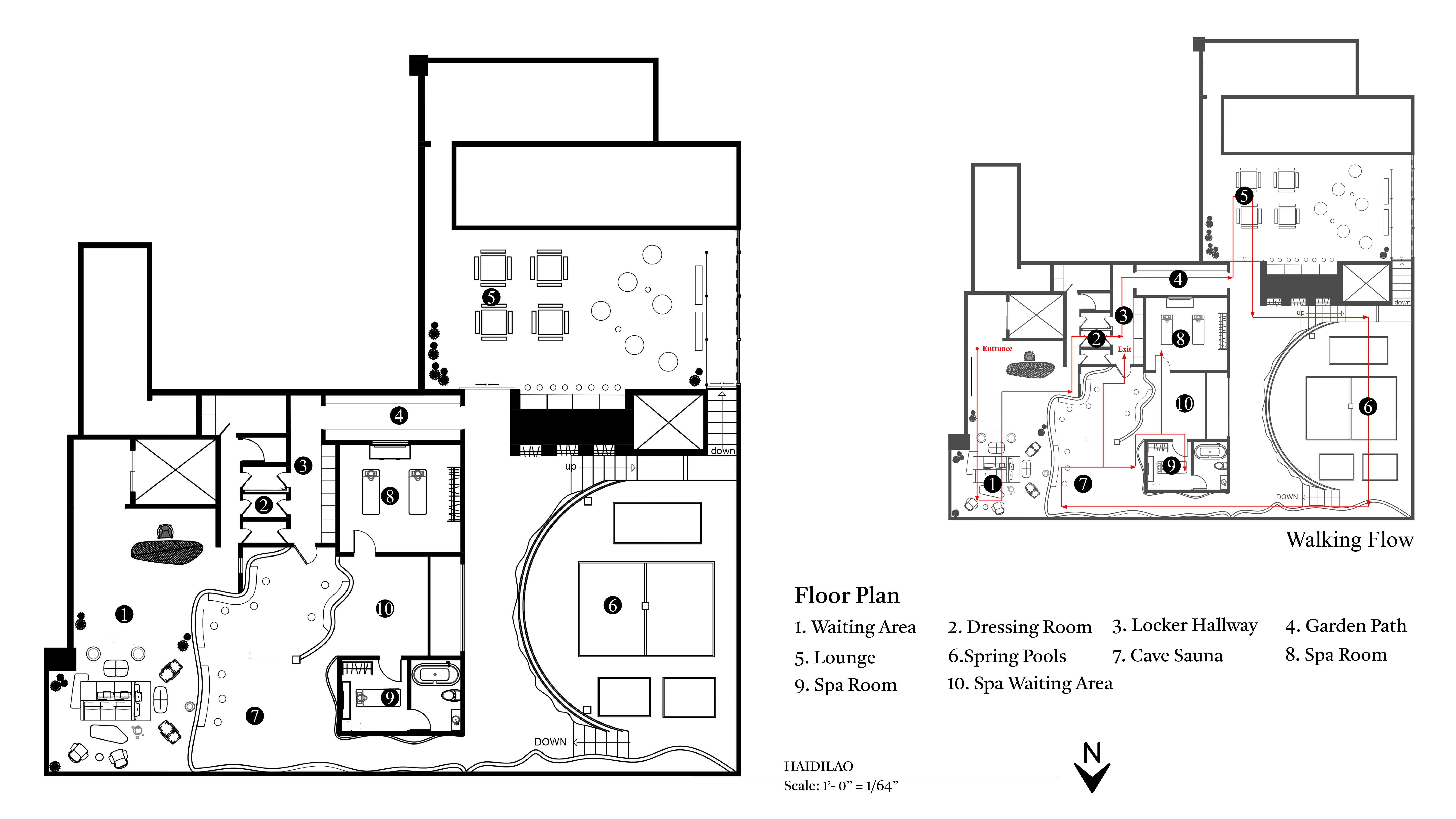
Haidilao hotpot spa design

Based on the Haidilao hotpot Brand concept of keep the connections between human (waiters) and human(customers). I try to include the connection between space and space in my design as well, so I refer to the traditional Chinese concept of garden design - Change the landscape with each step. The "corner" represents the connection of every space. Behind every corner there is a surprising view that you can enjoy with your family and friends.
Image
Image
Image
Image
Image
Image
Image
Image
Image
Image
Image
Image
Image
Image
Image
Image
Image