Graduates

Xueyi Wu

MS in Spatial Experience Design - 2 Yr Path — Graduate Spatial Experience Design

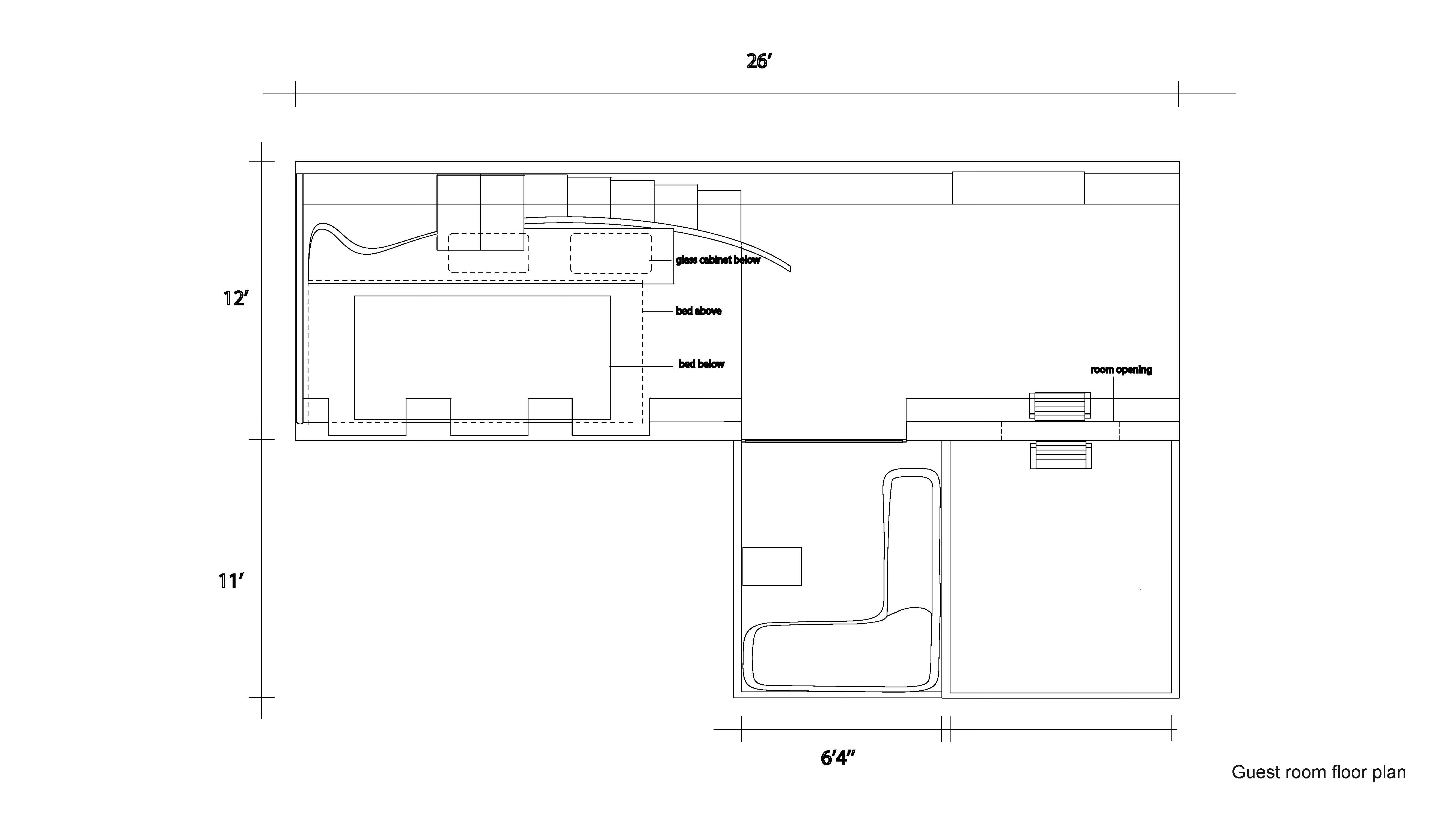
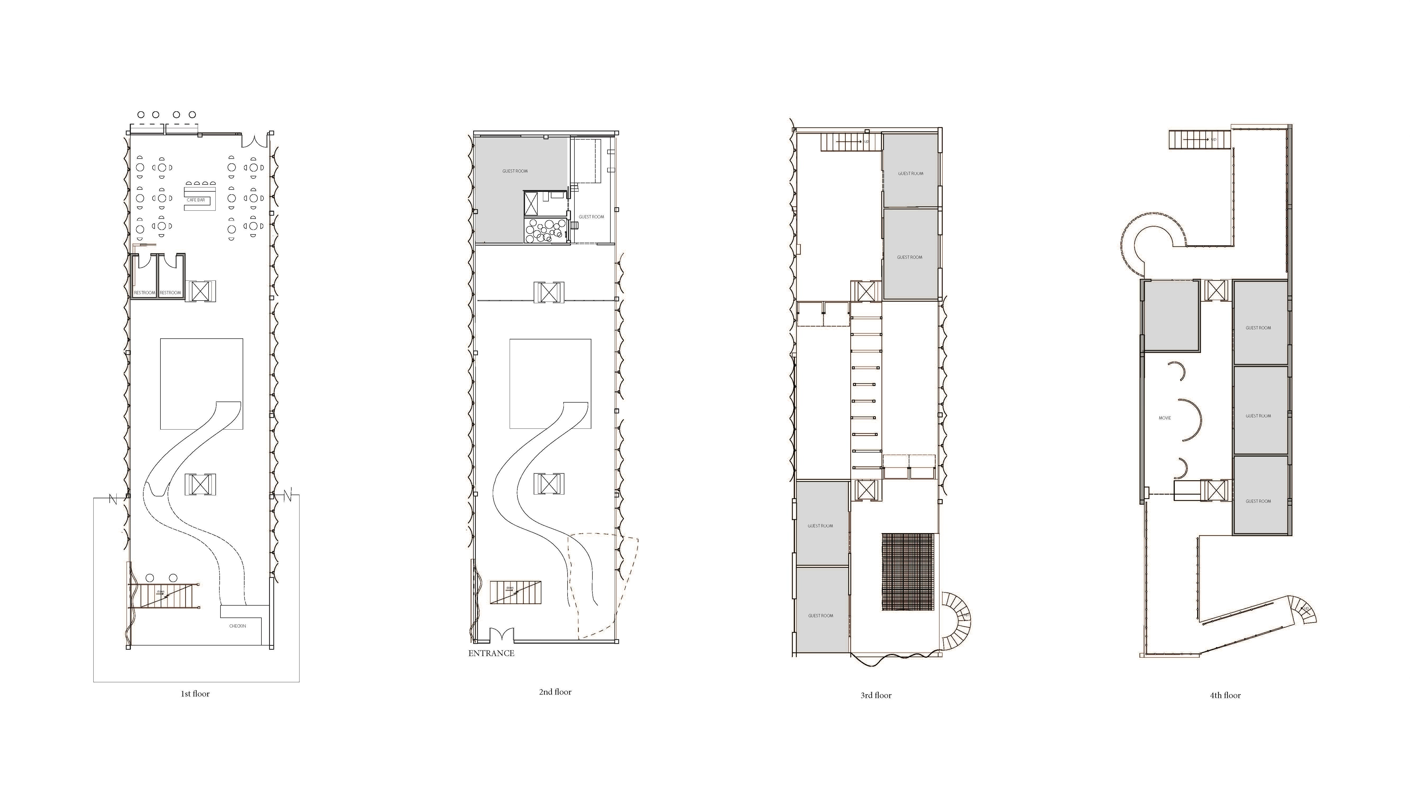
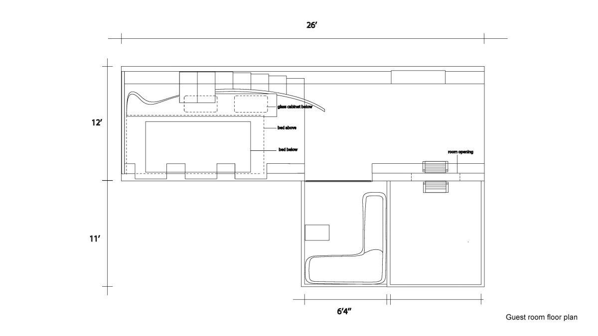
Mirth Mirror Hotel

Mirrored Mirth Hotel is a hotel to help adults to think back to their childhood by acting children’s behavior, in partnership with Popmart, with the goal of enjoying the travel time like a kid.
Image
Image
Image
Image
Image
Image
Image
Image
Image
Image
Image
Image
Image
Image
Image
Image
Image
Image
Image